Öffentliche Bekanntmachung

Sitzung des Gemeinderates Wilhelmsdorf Am Mittwoch, 28. Juli 2021, findet nur eine nichtöffentliche Sitzung und keine öffentliche Sitzung des Gemeinderates Wilhelmsdorf statt. Mit freundlichen Grüßen Rüdiger Probst Erster Bürgermeister

2021-07-26T16:00:59+02:0026. Juli 2021|Allgemein|

Öffnungszeiten der Rathäuser

Liebe Bürgerinnen und Bürger! Die Rathäuser sind für den Besucherverkehr grundsätzlich wieder geöffnet. Die Maskenpflicht gilt weiterhin. Wir bitten um Terminvereinbarung um die Abstandsregeln wahren zu können. Sie erreichen uns unter der Tel.: 09104 / [...]

2021-06-18T09:37:38+02:0018. Juni 2021|Allgemein, Corona|

Zustellung Mitteilungsblatt

Ab sofort wird Werbeverweigerern das Mitteilungsblatt nicht mehr zugestellt. In Hagenbüchach liegen gedruckte Exemplare bei der Bäckerei Dünisch, Tankstelle Feder und im Rathaus aus. Damit Sie sich das Mitteilungsblatt jederzeit holen können werden wir eine [...]

2021-04-01T17:28:38+02:001. April 2021|Allgemein|

Vom Grundstückseigentümer zum Naturschützer

Jedes Bauvorhaben, welches einen erheblichen Eingriff in die Natur und Landschaft mit sich bringt, muss, sofern die negativen Auswirkungen nicht vermieden werden können, ausgeglichen, bzw. kompensiert werden. So werden aus ökologisch wenig wertvollen Flächen sinnvolle [...]

2021-02-05T09:36:17+01:005. Februar 2021|Allgemein|

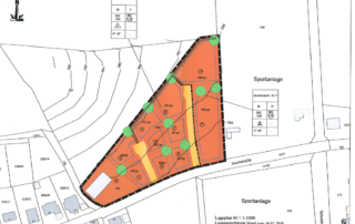
Bekanntmachung der Öffentlichen Auslegung gemäß § 3 Abs. 2 und § 4 Abs. 2 BauGB

0_Nr. 15 Sandgruben_Bekanntmachung der Öffentlichen Auslegung gemäß § 3 II 1_Gegliedertes Mischgebiet_Begründung_2_12_02 2_Beb-Plan_Nr._15_Sandgrube_20_12_02 3_Umweltbericht BBP Sandgruben 4_Schallschutztechnisches Gutachten 5_saP gesamter Bereich Sandgruben - Schulstraße - Grundweg 6.1_TöB Abwägungsbeschluss September 6.2_TöB Abwägungsbeschluss Dezember 7.1_Abwägungsbeschlüsse Öffentlichkeit September [...]

2020-12-17T09:34:10+01:0017. Dezember 2020|Allgemein|
Nach oben