0_Nr. 15 Sandgruben_Bekanntmachung der Öffentlichen Auslegung gemäß § 3 II
1_Gegliedertes Mischgebiet_Begründung_2_12_02
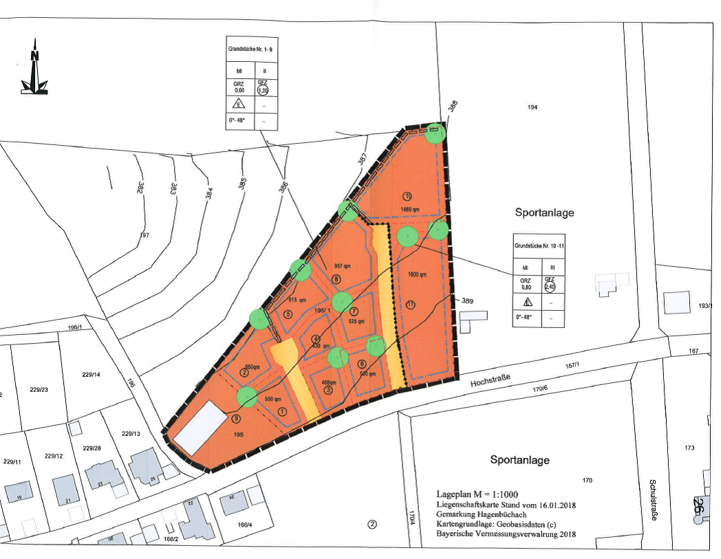
2_Beb-Plan_Nr._15_Sandgrube_20_12_02
3_Umweltbericht BBP Sandgruben
4_Schallschutztechnisches Gutachten
5_saP gesamter Bereich Sandgruben – Schulstraße – Grundweg
6.1_TöB Abwägungsbeschluss September
6.2_TöB Abwägungsbeschluss Dezember
7.1_Abwägungsbeschlüsse Öffentlichkeit September
7.2_Abwägungsbeschlüsse Öffentlichkeit Dezember
8_Datenschutz