Bekanntmachung des Aufstellungsbeschlusses gemäß § 2 Abs. 1 S. 2 BauGB.
Gemeinde Hagenbüchach für den Bebauungsplan Nr. 15 „Sandgruben“
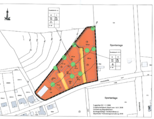
Der Gemeinderat Hagenbüchach hat in seiner Sitzung vom 12.09.2018 gemäß § 2 Abs. 1 BauGB die Aufstellung des Bebauungsplanes „Sandgruben“ für die Fl.-Nrn. 195 und 195/1, Gmkg. Hagenbüchach, beschlossen.
Geltungsbereich

Geltungsbereich Bebauungsplan Nr. 15 „Sandgruben“
Das Gebiet wird als Mischgebiet ausgewiesen. Der Lageplan mit Kennzeichnung der Abgrenzung des räumlichen Geltungsbereichs des Bebauungsplanes ist Bestandteil des Beschlusses (siehe obigen Lageplan).
Verfahrensart
Der Bebauungsplan wird im Regelverfahren aufgestellt.
Allgemeine Ziele und Zweck der Planung
Es handelt sich um eine Maßnahme im Außenbereich, die als Lückenschluss für die bestehende Bebauung in der Hochstraße und dem Sportplatz steht.
Hagenbüchach, 26.10.2020
David Schneider
Erster Bürgermeister